Villa à NIL-SAINT-VINCENT-SAINT-MARTIN (1457)

529.999 €

Général
Prix
:
529.999 €
Revenu cadastral
:
1.762 €
Nombre de Chambre(s)
:
4 chr
Nombre de salle(s) de bain
:
1
Nombre de salle(s) de douche
:
2
Garage(s)
:
1
Adresse
:
1457 NIL-SAINT-VINCENT-SAINT-MARTIN
Superficie totale
:
172 m²
Superficie living
:
30 m²
Superficie terrain
:
963 m²
Largeur façade
:
7 m
Largeur terrain
:
21 m
Année de construction
:
2008
Description
VISITES SUSPENDUES - OFFRE ACCEPTEE - Découvrez cette charmante villa idéalement située à Nil-Saint-Vincent-Saint-Martin, offrant à la fois confort et fonctionnalité. Cette propriété, avec ses 172m² habitables, est implantée sur 9a63ca. Elle se compose de : hall d'entrée avec toilette séparée, lumineux séjour qui s'ouvre sur la terrasse et le jardin, cuisine équipée, buanderie/chaufferie, bureau, garage avec espace rangement/atelier en mezzanine. Aux étages, elle vous offre 3 chambres (27,40-14,80-14,80 m²) ainsi que 2 pièces polyvalentes, 2 salles d'eau (sdb complète au 1er étage et sdd au second étage) soigneusement aménagées, toilette séparée. À l'entrée, un spacieux hall mène à un salon lumineux qui s'ouvre sur une grande terrasse, idéale pour vos moments de détente en famille ou entre amis. La vaste salle à manger attenante est parfaitement intégrée au salon, offrant un espace de vie ouvert et convivial. La cuisine moderne et bien équipée, avec vue et accès direct sur le jardin. Gaz de ville. PEB C - 172 kWh/m².an - UC20220615008576. Vous rêvez d'une maison fonctionnelle où rien n'a été oublié ! Ne cherchez plus ! Elle est là pour vous ! Appels d'offres à partir de 529.999€ sous réserve d'acceptation des vendeurs. Pour être certains d'être les premiers, fixer DIRECTEMENT votre créneau de visite via notre site www.immobienetre.be. Si vous avez besoin d'informations complémentaires, contactez-nous au 010 77 91 9. N'attendez plus pour visiter cette demeure exceptionnelle!
PEB
PEB No.20220615008576
E spec
:
172 kWh/m².an
E totale
:
39.752 kWh/an
Emission CO2
:
7409 Kg CO2/m².an
Héritages
:
Non

Composition
Hall d'entrée
:
9.6 m²
Séjour
:
30 m²
Cuisine équipée
:
11.4 m²
Bureau
:
7.9 m²
Toilette 1
:
1.6 m²
Buanderie
:
5.3 m²
Garage 1
:
31.9 m²
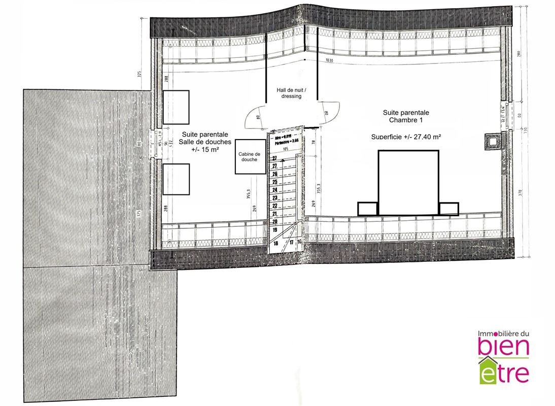
Hall de nuit
:
10.9 m²
Chambre à coucher 2
:
14.8 m²
Chambre à coucher 3
:
14.8 m²
Dressing
:
9.5 m²
Bureau
:
7.9 m²
Toilette 2
:
1.2 m²
Salle de bains 1
:
7.2 m²
Mezzanine
:
12 m²
Cage d'escalier
:
3.7 m²
Hall de nuit
:
3 m²
Chambre à coucher 1
:
27.4 m²
Salle de douche 2
:
15 m²
Confort/Equipements
Chauffage
:
C.C. au gaz
Gaz
:
Oui
Raccordement à l’eau
:
Oui
Confort intérieur
:
Alarme
Cuisine
:
Entièrement équipée
Confort extérieur
:
Atelier
Vitrage
:
Double
Type de vitrage
:
PVC